Woonoppervlakte
Circa 272 m²
Perceeloppervlakte
Circa 2544 m²
Bouwjaar
Gebouwd in 1955
Aantal kamers
14 kamers (10 slaapkamers)

Gezellelaan 16

4707 CD, Roosendaal (Noord-Brabant)

Wauw dit unieke familiehuis is echt een plaatje! Aan de rustige en groene Gezellelaan, net buiten het centrum van Roosendaal, staat een woning die je niet elke dag tegenkomt. Dit royale huis met acht slaapkamers ligt op een perceel van ruim 2.500 vierkante meter. De tuin voelt bijna als een landgoed, met hoge en grote bomen, volop privacy en een lange oprijlaan die meteen indruk maakt. De woning zelf is gedateerd, maar degelijk gebouwd. Je voelt meteen de kwaliteit van de basis. Ruim, stevig en klaar voor een volgende stap. Voor wie op zoek is naar ruimte én de mogelijkheid om alles naar eigen smaak te renoveren, is dit een buitenkans. Nieuwsgierig geworden? Plan dan snel die bezichtiging in! Dit is een woning met potentie die je moet komen ervaren.

Indeling
Via de lange oprijlaan rijd je naar de woning. Eenmaal binnen ervaar je direct de ruimte: brede gangen, hoge plafonds en een logische indeling. De woonkamer biedt uitzicht op de tuin en heeft veel lichtinval. De keuken is eenvoudig, maar ruim van opzet – een mooie basis om er iets moois van te maken.
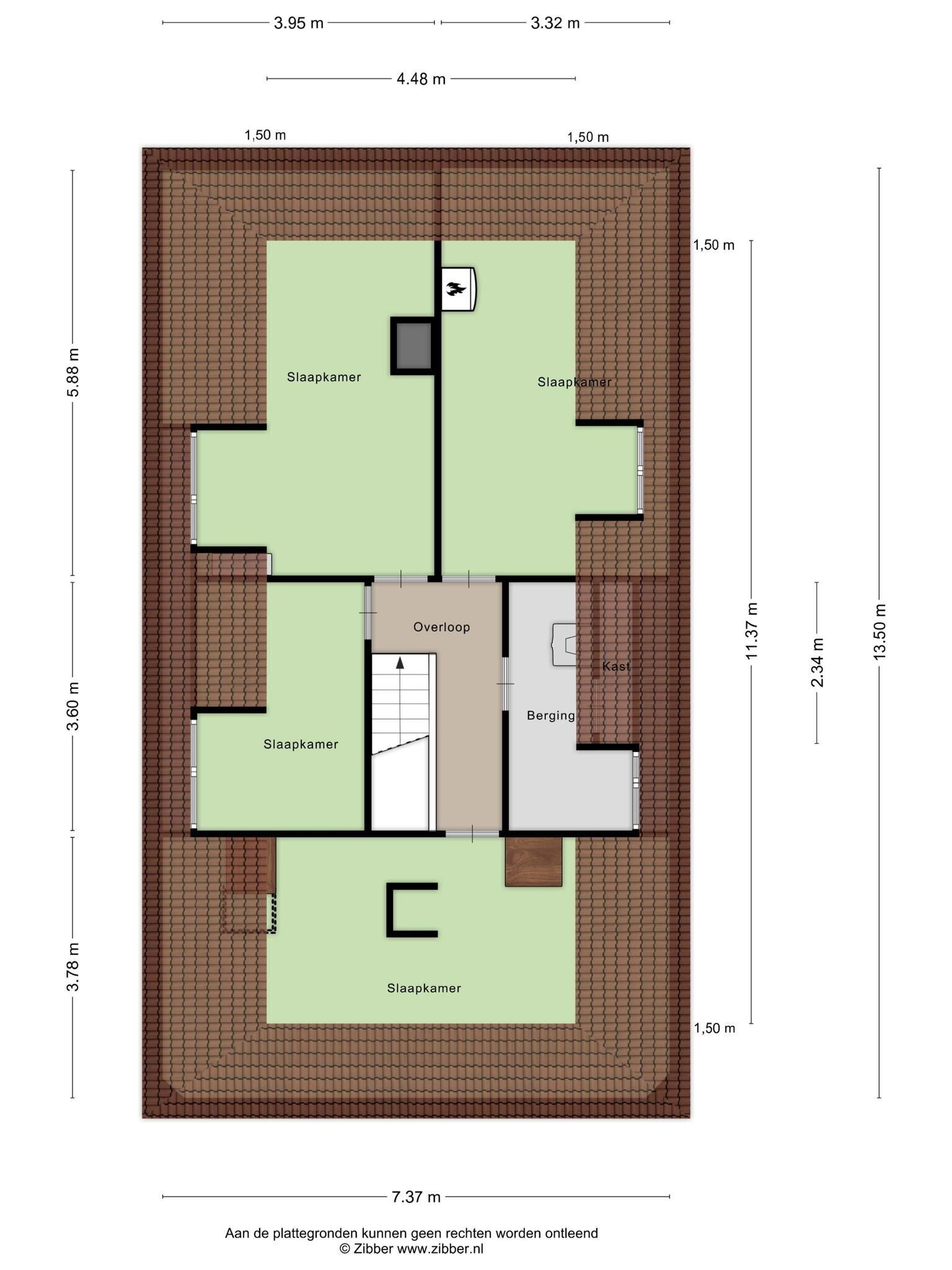
Op de verdiepingen vind je maar liefst acht slaapkamers. Dat betekent plek voor het hele gezin, gasten, werken aan huis of bijvoorbeeld een speelkamer of hobbyruimte. Er bevindt zich op zowel de begane grond als de eerste verdieping een badkamer, beide zijn erg functioneel. Ook op zolder is veel potentieel aanwezig.

Buitenruimte
De tuin is echt een eyecatcher. Groot, groen en heerlijk rustig. Je hebt hier alle vrijheid om je eigen droomtuin te realiseren. Of je nu droomt van een moestuin, een zwembad, speeltoestellen of een groot terras – er is plek genoeg.

Ligging
De woning ligt in een geliefd deel van Roosendaal. Rustig en groen, maar met uitvalswegen, winkels, scholen en sportvoorzieningen binnen handbereik. Een ideale combinatie van privacy én bereikbaarheid.

Ben jij op zoek naar een huis met veel ruimte, karakter en mogelijkheden om het helemaal naar je eigen hand te zetten? Dan is de Gezellelaan 16 zeker een bezoek waard.

Toelichtingsclausule NEN2580:
De Meetinstructie is gebaseerd op de NEN2580. De Meetinstructie is bedoeld om een meer eenduidige manier van meten toe te passen voor het geven van een indicatie van de gebruiksoppervlakte. De Meetinstructie sluit verschillen in meetuitkomsten niet volledig uit, door bijvoorbeeld interpretatieverschillen, afrondingen of beperkingen bij het uitvoeren van de meting.

Plattegronden

Overdracht

Vraagprijs
€ 800.000 k.k.
Status
Verkocht
Aanvaarding
In overleg

Bouw

Object type
Villa, vrijstaande woning
Soort bouw
Bestaande bouw
Bouwjaar
1955
Soort dak
Schilddak

Oppervlakte en inhoud

Woonoppervlakte
272 m²
Perceeloppervlakte
2544 m²
Inhoud
1008 m³
Externe bergruimte
37 m²
Gebouwgeb. buitenruimte
12 m²

Indeling

Aantal kamers
14 kamers (10 slaapkamers)
Aantal badkamers
2 badkamers
Badkamervoorzieningen
Douche, wastafel ligbad, douche, wastafel
Aantal woonlagen
3 woonlagen

Energie

Energielabel
F
Energielabel registratie
17-12-2020
Isolatie
Gedeeltelijk dubbel glas
Verwarming
Cv-ketel
Warm water
Cv-ketel
Cv ketel
Vaillant combiketel gas gestookt uit 2023 (eigendom)

Buitenruimte

Ligging
In woonwijk
Balkon / dakterras
Balkon
Tuin
Achtertuin, voortuin

Bergruimte

Schuur / berging
Vrijstaand steen

Garage

Soort garage
Vrijstaand steen
Capaciteit
1 auto

Parkeergelegenheid

Soort parkeergelegenheid
Op eigen terrein

Energieverbruik in Roosendaal

Energielabel deze woning

Energielabel F

Publicatie energielabel: 17-12-2020

Stroomverbruik per jaar

4120 kWh

(Gemiddelde vrijstaande woning in Roosendaal)

Gasverbruik per jaar

1900 m³

(Gemiddelde vrijstaande woning in Roosendaal)

* Cijfers zijn afkomstig van het CBS en bedoeld als indicatie en kunnen verschillen voor deze woning

Indicatie hypotheeklasten

Eigen inleg:
Spaargeld / overwaarde

Rente:
Laagste 10-jaars rente

Laagste 10-jaars rente

2,76% - Centraal Beheer Groen... - NHG


2,98% - Centraal Beheer Groen... - 80%

Laagste 20-jaars rente

3,19% - Centraal Beheer Groen... - NHG


3,31% - Centraal Beheer Groen... - 80%

Laagste 30-jaars rente

3,34% - Centraal Beheer Groen... - NHG


3,47% - Centraal Beheer Groen... - 80%


Hypotheek:

Bruto maandlasten: € 0 p/m

Netto maandlasten: € 0 p/m

Hoe berekenen we dit?

Het rentepercentage is gebaseerd op de laagste 10-jaars vaste rente voor één hypotheekdeel. De vermelde rente (2.98% zonder NHG) is gecontroleerd op 09-07-2025. Deze berekening is gebaseerd op een annuïteitenhypotheek die volledig wordt afgelost, waarbij de maandlasten gedurende de gehele looptijd gelijk blijven. De werkelijke rente en netto maandlasten kunnen variëren, afhankelijk van uw persoonlijke situatie en de hypotheekverstrekker. Raadpleeg een financieel adviseur voor een nauwkeurige berekening en advies. Aan deze berekening kunnen geen rechten worden ontleend; het dient enkel als indicatie.

Documentatie

Zonnegrenzen bekijken

Op de kaart

Inwoners in Roosendaal

Cijfers voor postcodegebied 4707

Totaal aantal inwoners
16200 inwoners
Mannen
49%
Vrouwen
51%

Inwoners in Roosendaal

Cijfers voor postcodegebied 4707

tot 15 jaar
15%
15 tot 25 jaar
11%
25 tot 35 jaar
21%
45 tot 65 jaar
26%
65 en ouder
26%

Huishoudens in Roosendaal

Cijfers voor postcodegebied 4707

Eenpersoons zonder kinderen
35%
Meerpersoons zonder kinderen
31%
Huishoudens zonder kinderen
66%

Huishoudens in Roosendaal

Cijfers voor postcodegebied 4707

Huishoudens met één kind
9%
Huishoudens met meerdere kinderen
24%
Huishoudens met kinderen
33%

Woningen in Roosendaal

Cijfers voor postcodegebied 4707

Woningen voor 1945
1%
Woningen tussen 1945 en 1965
1%
Woningen tussen 1965 en 1975
53%
Woningen tussen 1975 en 1985
19%
Woningen tussen 1985 en 1995
13%

Woningen in Roosendaal

Cijfers voor postcodegebied 4707

Woningen tussen 1995 en 2005
4%
Woningen tussen 2005 en 2015
9%
Woningen na 2015
1%
Huurwoningen
50%
Koopwoningen
50%

Overige in Roosendaal

Cijfers voor postcodegebied 4707

Gemiddelde WOZ waarde
€ 201.000,-
Personen onder de 65 met uitkering
9%

Overige in Roosendaal

Cijfers voor postcodegebied 4707

Adressen per km²
2025
Stedelijkheid (schaal 1 op 5)
80%
Postcode kaart 4707 Gemeente kaart roosendaal

Korte feiten over Roosendaal

Roosendaal (uitspraakⓘ) is een stad in de Nederlandse provincie Noord-Brabant, en de grootste plaats binnen de gelijknamige gemeente Roosendaal.

Indien u vragen heeft of u wilt een bezichtiging inplannen, dan kunt u gebruik maken van het formulier hiernaast. Er zal daarna op korte termijn contact met u worden opgenomen.

Vakidioten met een passie voor vastgoed

Bij C&R Makelaars draait alles om jou en je woning. Wij zijn een frisse, energieke generatie makelaars met een passie voor mensen en de woningmarkt.

We geloven in een persoonlijke aanpak zonder poespas: eerlijk, transparant en altijd met een flinke dosis enthousiasme. Het verkopen van je huis is een belangrijke stap, en daarom begeleiden we je op een manier die bij jou past, van begin tot eind.

Met onze diepgaande kennis van de lokale markt geven we je waardevol advies dat perfect aansluit bij jouw situatie én dat van potentiële kopers.

Daarnaast staat ons creatieve team van vastgoedmarketeers klaar om jouw woning in de schijnwerpers te zetten. Met slimme en doordachte strategieën zorgen we ervoor dat je huis opvalt en het maximale resultaat behaalt.

Jouw tevredenheid is ons einddoel. We zetten alles op alles om je verwachtingen te overtreffen. Nieuwsgierig naar ons team? Klik op de button hieronder en maak kennis met ons!

Vakidioten met een passie voor vastgoed
Reviews C&R Makelaars

Gezellelaan 16, Roosendaal

€ 800.000 k.k. - Verkocht

Helaas, deze woning is verkocht!

Net te laat, deze woning is al verkocht. Laat een zoekopdracht bij ons achter zodat wij u direct kunnen helpen wanneer er nieuw aanbod beschikbaar komt.